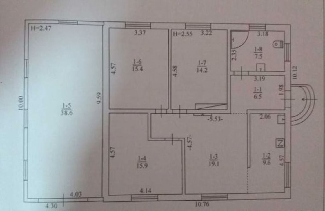
Будинок, 90 м², 1 поверх, 3 кімнати, 14 сот.78 000 USDБориспіль, Бориспольский, Профспілкова, 1 • На мапі Кімнат3
Площа90 м²
Ділянка14 сот.
Поверхів1
Продам будинок (без комісії)Продам будинок 2015 р. Бориспіль. Стіни газоблок, утеплення мінвата, дах бітумна черепиця, три кімнати, гараж, погріб, ділянка 14 сот. Опалення - електричний котел, камін. Вулиця освітлюється. Частково з меблями і технікою. Торг. Тип об'єктуБудинок Id оголошення561836 Поділитися 78 000 $ Власник: Володимир Повідомлення |























